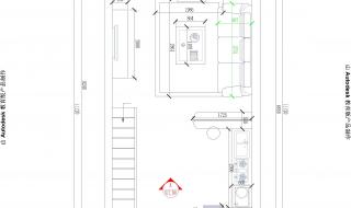
大兴首邑溪谷怎么样 首邑溪谷户型图
作者:局琼怡 时间:2026-01-14 19:29 阅读数:15497
一、大兴首邑溪谷怎么样
性价比不错,适合年轻朋友和第一次买房的人,买一层送一层,实际得房后相当于每平米才一万三左右,现在大兴的均价基本在一万九。

二、首邑溪谷真实现状
北京大兴首邑溪谷得立方空间是高层户型,从38到68平米的都有,层高4.8米,别看听起来小,实际很划算,上下两层,开发商给隔好的,都能做成两居室使用,而且价格上优势很大,总价120万起,这么算下来首付也就40万左右,比较划算。

点赞支持 (1606)
须知
天德百科网所有的摄影作品、视频教程、文章内容及教程截图均属于本站原创,版权为本站所有。
天德百科网旨在督促自己学习总结经验,分享知识,提供的软件、插件等相关资源仅供学习交流之用。
天德百科网分享的部分内容来源于网络,旨在分享交流学习,版权为原作者所有。
天德百科网提供的资源仅供日常使用和研究,不得用于任何商业用途。如发现本站软件素材侵犯了您的权益,请附上版权证明联系站长删除,谢谢!
根据二oo二年一月一日《计算机软件保护条例》规定:为了学习和研究软件内含的设计思想和原理,通过安装、显示、传输或者存储软件等方式使用软件的,可不经软件著作权人许可,无需向其支付报酬!鉴此,也望大家转载请注明来源! 下载本站资源或软件试用后请24小时内删除,因下载本站资源或软件造成的损失,由使用者本人承担!
本网站尊重并保护知识产权,根据《信息网络传播权保护条例》,如果我们转载的作品侵犯了您的权利,请邮件通知我们,我们会及时删除。
转载请注明出处>>大兴首邑溪谷怎么样 首邑溪谷户型图
